Измерительный шаблон сварщика WG7 ЭЛИТЕСТ
(Альтернативные названия: универсальный шаблон сварщика AWS, Automatic Weld Size Weld Gauge)

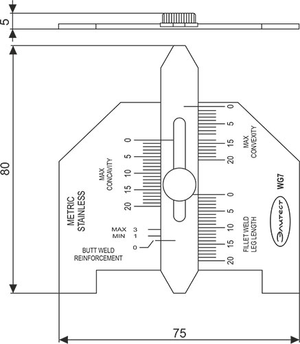
Общий вид WG7
1 – основание; 2 – измерительный движок; 3 – стопорное устройство; А – шкала для измерения катета (fillet weld leg length) и фактической толщины углового шва; Б – шкала для контроля максимальной выпуклости (max convexity) углового шва; В – шкала для определения катета вогнутого углового шва; Г – шкала для контроля выпуклости стыкового шва (butt weld reinforcement); И, К, Л, М – контрольные риски-индексы шкал (А), (Б), (В) и (Г) соответственно
Назначение
Универсальный шаблон сварщика WG7 предназначен для визуально-измерительного контроля, параметров углового и стыкового сварного шва. Особенностью данного шаблона, является наличие контрольных шкал для определения допустимости выпуклости и вогнутости угловых и стыковых швов по стандарту AWS D1.1.
Технические характеристики
Справочные размеры, мм:

Вес, не более: 65 г
Материал: нержавеющая сталь
|
Шкала
|
Ед. изм.
|
Диапазон шкалы
|
Цена деления шкалы
|
Погрешность измерения
|
|
А
|
мм
|
0–20,0
|
1,0
|
±0,20
|
|
Б
|
0–20,0
|
1,0
|
–
|
|
В
|
0–20,0
|
1,0
|
±0,20
|
|
Г
|
0; 1,0; 3,0
|
–
|
±0,20
|
Контролируемые параметры

|
Параметр
|
Измерение по шкале
|
Диапазон измерения
|
Цена деления шкалы
|
Погрешность измерения
|
|
Стыковой шов
|
выпуклость стыкового шва (g1), мм
|
Г
|
0; 1,0; 3,0
|
–
|
±0,20
|
|
Угловой шов
|
фактическая толщина углового шва (a), мм
|
А
|
0–20,0
|
1,0
|
±0,20
|
|
катет выпуклого и нормального углового шва (k), мм
|
|
катет вогнутого углового шва (kвогн.), мм
|
В
|
0–20,0
|
1,0
|
±0,20
|
|
максимально допустимая выпуклость углового шва (g2), мм *
|
Б
|
Для швов с катетом
0–20,0
|
1,0
|
–
|
* В соответствии со стандартом AWS D1.1. Допустимая выпуклость для угловых швов с шириной лицевой поверхности до 8 мм включительно – 2 мм, для угловых швов с шириной лицевой поверхности от 8 до 25 мм – 3 мм.
Доставка осуществляется со склада в Нижнем Новгороде.
Сопровождение и контроль перевозки осуществляется на всем пути следования груза. Все транспортируемые грузы в обязательном порядке страхуются.
С транспортными компаниями "Деловые линии", "DPD", City Express", "Major Express", "КСЭ", "ПЭК", "Возовоз" заключены договоры на перевозку грузов. По запросу возможна доставка другой транспортной компанией, сотрудничество с которой вам наиболее удобно.
Обращаем внимание, что транспортные компании могут осуществлять доставку до терминала (если он есть в вашем городе), либо по адресу.
Наша компания работает с юридическими лицами. Оплата производится безналичным перечислением на расчетный счет.
Счет на оплату выставляется в максимально сжатые сроки, в среднем в течение 90 минут. Выставленный счет направляется Заказчику электронной почте. Оригиналы счета, товарной накладной и счета-фактуры предоставляются при получении оборудования или высылаются вместе с ним и свидетельствами о поверке (калибровке), если таковые имеются, курьерской службой по адресу Заказчика.