Цифровой плоскопанельный детектор PerkinElmer XRD 0822
Цифровой рентгеновский плоскопанельный детектор PerkinElmer XRD 0822 позволяет получать изображения высокого качества в расширенном динамическом диапазоне.

Особенности
- Корпус, устойчивый к воздействию агрессивных сред и радиации.
- Разрешение матрицы 1024 × 1024 точек, размер пикселя 200 мкм.
- Широкий динамический диапазон — до 65 536 градаций серого (модель XRD 0822 AP с АЦП 16 бит).
- Передача изображения в реальном времени — до 100 кадров в секунду (модель XRD 0822 AP с АЦП 16 бит).
- Детектор рассчитан на рентгеновское излучение в диапазоне энергий от 20 кэВ до 15 МэВ.
- Гибкая настройка параметров усиления сигнала.
- Передача данных и сигналов управления через Ethernet-порт 1 Гбит/с.
Области применения
- Неразрушающий контроль в промышленности.
- Научные исследования.
Модификации
Плоскопанельный детектор выпускается в двух модификациях. Их основное отличие — разрядность аналого-цифрового преобразователя. Модель XRD 0822 AO может работать в динамическом диапазоне более 78 дБ с поддержкой частоты кадров до 30 к/с. XRD 0822 AP — более производительный детектор, работающий в диапазоне более 88 дБ с частотой кадров до 100 к/с, поддерживающий несколько режимов считывания. Оба детектора рассчитаны на диапазон энергий рентгеновского излучения от 20 кэВ до 15 МэВ.
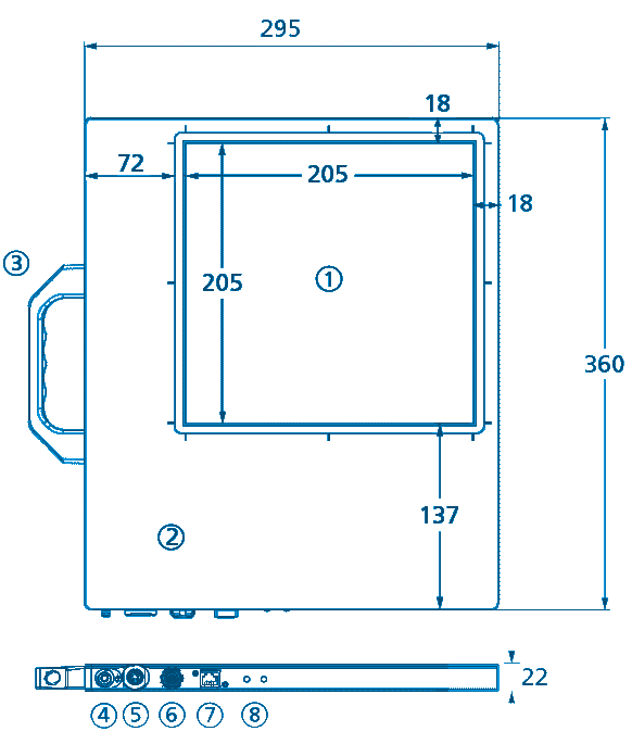
Схема устройства (размеры даны в миллиметрах)
|

|
- Активная область (сенсор)
- Корпус
- Съёмная ручка
- Шпилька
- Разъём питания
- Разъём триггера рентгеновского излучения
- Разъём Ethernet (RG45)
- Диагностические светодиоды
|
Панели PerkinElmer легко интегрируются в схему рентгенотелевизионного контроля изделий на промышленном производстве. Передача данных и управление детектором осуществляются по локальной сети. Для сбора, синхронизации и обработки изображений используется специальное программное обеспечение.
| Датчик |
| Панель |
Активная TFT/диодная матрица на базе аморфного кремния на единой подложке |
| Сцинтиллятор |
Прямое осаждение CsI:Tl или различные флуоресцентные экраны на основе Gd2O2S:Tb (GOS) |
| Матрица |
1024 × 1024, размер пикселя 200 мкм |
| Обработка сигналов |
| Усилители |
Специальные малошумящие интегральные схемы 8 × 128 каналов с 2 (модель AO) или 6 (модель AP) параметрами усиления,выбираемыми пользователем. |
| АЦП |
14 бит (модель AO), 16 бит (модель AP) |
| Механические характеристики |
| Размеры (Д × Ш × В), мм |
360 × 295 × 22 |
| Масса, кг |
3,7 |
| Материал корпуса |
Алюминий |
| Экранирование |
Защитная кассета, применяется при высоких энергиях рентгеновского излучения |
| Интерфейс управления |
| Передача данных |
Ethernet 1 Гбит/с (RG45) |
| Включение режима контроля |
Встроенный разъём для запуска режима считывания рентгеновского изображения |
| Программное обеспечение |
Поддержка 32 и 64-битных OS Windows |
| Параметры изображения |
| Квантовая эффективность (DQE) |
75% (0 пар линий/мм), 58% (1 пара линий/мм), 37% (2 пары линий/мм) для RQA5 с CsI |
| Контрастная передаточная функция (MTF) |
67% (1 пара линий/мм), 33% (2 пары линий/мм) с CsI |
| Задержка |
<8% 1-го кадра |
| Динамический диапазон |
>78 дБ (модель AO), >88 дБ (модель AP) |
| Диапазон энергий рентгеновского излучения |
20 кэВ – 15 МэВ |
| Условия эксплуатации и хранения |
| Температура |
+10 ÷ +40 °C (рабочая), −10 ÷ −50 °C (хранения) |
| Относительная влажность |
10–90% (без конденсации) |
| Степень защиты |
IP65 (общая защита от пыли и струй воды низкого давления) |
| Вибростойкость в соответствии с IEC/EN 60068-6 |
(10-150 Гц, 0.5 g) |
| Ударопрочность в соответствии с IEC/EN 60068-27 |
(11 мс, 2 g) |
| Электропитание |
| Источник питания |
100–240 В, 50/60 Гц |
| Мощность рассеяния |
25 Вт |
| Нормативные документы |
| Стандарты |
UL-60601-1, IEC/EN-60601-1, IEC/EN-60950-1 |
| Нормативы |
CE, RoHS (Директива ЕС по ограничению использования опасных веществ) |
Режим считывания
|
Частота кадров в секунду
|
| Тип |
Разрешение,
пк
|
Пиксель,
мкм
|
| Квадрат |
1024 × 1024 |
200 × 200 |
| 512 × 512 |
400 × 400 |
| Прямоугольник |
1024 × 512 |
200 × 400 |
| 1024 × 256 |
200 × 800 |
| Секционный |
1024 × 512 |
200 × 200 |
| 1024 × 256 |
200 × 200 |
|
Частота кадров в секунду
|
| Тип |
Модель
AO
|
Модель
AP
|
| Квадрат |
15 |
25 |
| 30 |
50 |
| Прямоугольник |
- |
50 |
| - |
100 |
| Секционный |
- |
50 |
| - |
100 |
| Плоскопанельный детекторXRD 0822 AO14 IND (14 бит) |
1 шт. |
| Блок питания XRD-EPS 215 Вт |
1 шт. |
| Кабель питания DC cable (7,5 м) |
1 шт. |
| Кабель подключения блока питания к сети ~220В XRD-EP AC Cable - GER |
1 шт. |
Доставка осуществляется со склада в Нижнем Новгороде.
Сопровождение и контроль перевозки осуществляется на всем пути следования груза. Все транспортируемые грузы в обязательном порядке страхуются.
С транспортными компаниями "Деловые линии", "DPD", City Express", "Major Express", "КСЭ", "ПЭК", "Возовоз" заключены договоры на перевозку грузов. По запросу возможна доставка другой транспортной компанией, сотрудничество с которой вам наиболее удобно.
Обращаем внимание, что транспортные компании могут осуществлять доставку до терминала (если он есть в вашем городе), либо по адресу.
Наша компания работает с юридическими лицами. Оплата производится безналичным перечислением на расчетный счет.
Счет на оплату выставляется в максимально сжатые сроки, в среднем в течение 90 минут. Выставленный счет направляется Заказчику электронной почте. Оригиналы счета, товарной накладной и счета-фактуры предоставляются при получении оборудования или высылаются вместе с ним и свидетельствами о поверке (калибровке), если таковые имеются, курьерской службой по адресу Заказчика.