Передвижная дефектоскопическая лаборатория на базе автомобиля КАМАЗ
Назначение: неразрушающий контроль сварных швов при проведении монтажных работ на протяжке магистральных газо- и нефтетрубопроводов в полевых условиях.
Технология: бескаркасная конструкция с использованием трехслойных сэндвич-панелей.
Наружный слой: лист из дюралеалюминиевого сплава/металл/оцинковка.
Средний слой: армированный пенопласт/пенополиуретан.
Внутренняя обшивка: облагороженный ДВП /фанера /пластик/оцинковка/пищевой алюминий.
Примечание: в зависимости от назначения и условий эксплуатации, толщина панелей может варьироваться от 30 до 60 мм.

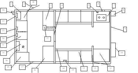
1. Объединенный блок питания/защиты 24В 63А. 2. Боковая дверь без окна. 3. Шкаф сушильный для одежды с масляным радиатором на 1 кВт. 4. Перегородка с дверью типа «купе». 5. Розетка на 220 В. 6. Вентилятор на 220 В. 7. Тумба с газовой двухконфорочной плитой. 8. Ящик под баллон «Пропан» с баллоном. 9. Дверь задняя одностворчатая с окном, шторой и поручнем. 10. Держатель запасного окна 11. Выгородка под генератор с боковым левым открыванием с доступом только снаружи, внутри герметичная выгородка. 12. Полуперегородка − 2 шт. 13. Рундук со складным столиком по типу плацкартного вагона − 2 шт.
|
14. Полка верхняя откидная − 2 шт. 15. Отопитель WEBASTO на 5 кВт. 16. Проявочная установка. 17. Окно со светонепроницаемой шторкой − 3 шт. 18. Бак с нагревателем на 20 л. 19. Тумба с мойкой и сифоном (без слива воды наружу). 20. Блок розеток на 220 В − 2 шт. 21. Стол рабочий однотумбовый. 22. Переговорное устройство «кабина - кузов». 23. Огнетушитель ОУ-2(3). 24. Ввод/земля. 25. Розетка на 220 В, 24 В. 26. Сейф металлический (глубина по ширине стола, высота чуть выше стола до обеденного блока, разделен на два равных отсека). 27. Сушилка для рентгенпленки. На схеме не показано условное обозначение освещения (6 плафонов). |
Доставка осуществляется со склада в Нижнем Новгороде.
Сопровождение и контроль перевозки осуществляется на всем пути следования груза. Все транспортируемые грузы в обязательном порядке страхуются.
С транспортными компаниями "Деловые линии", "DPD", City Express", "Major Express", "КСЭ", "ПЭК", "Возовоз" заключены договоры на перевозку грузов. По запросу возможна доставка другой транспортной компанией, сотрудничество с которой вам наиболее удобно.
Обращаем внимание, что транспортные компании могут осуществлять доставку до терминала (если он есть в вашем городе), либо по адресу.
Наша компания работает с юридическими лицами. Оплата производится безналичным перечислением на расчетный счет.
Счет на оплату выставляется в максимально сжатые сроки, в среднем в течение 90 минут. Выставленный счет направляется Заказчику электронной почте. Оригиналы счета, товарной накладной и счета-фактуры предоставляются при получении оборудования или высылаются вместе с ним и свидетельствами о поверке (калибровке), если таковые имеются, курьерской службой по адресу Заказчика.